608 Hort St , Westfield Town, New Jersey 07090-4164
608 Hort St , Westfield Town, New Jersey 07090-4164
$950,000
Description
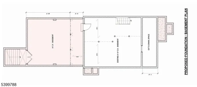
Welcome to an exceptional development or custom homebuilding opportunity in one of New Jersey’s most sought after towns. Positioned in the heart of Westfield, just .70 mile from the NJ Transit station and downtown area this property presents a rare chance to bring a fully reimagined residence to life, crafted to your specifications and expertly aligned with the approved architectural vision already underway.This property has been completely gutted and awaits construction pending final site plan approval. Survey is attached. Architectural plans are also attached and include a thoughtful expansion with an open concept first floor featuring a large kitchen/family room, a private office, and a generously sized second level with a sophisticated primary suite and three additional bedrooms, and large finished room and full bath on the third floor. The expanded newly constructed home will consist of 9 rooms, 4 bedrooms and 4 full baths and full basement. There is a two car detached garage proposed. Square footage will be approximately 3,127. With the most significant demolition already complete, this is a streamlined path for developers, investors, or end users seeking a high end custom home in a prestigious community.
[Warning] Undefined array key "fave_additional_feature_title" in /home/u631305702/domains/njqueensrealtybelleville.com/public_html/wp-content/plugins/mls-on-the-fly/src/Components/CloudPost/SubComponents/Integration/Targets/HouzezIntegration.php on line 117
[Deprecated] explode(): Passing null to parameter #2 ($string) of type string is deprecated in /home/u631305702/domains/njqueensrealtybelleville.com/public_html/wp-content/plugins/mls-on-the-fly/src/Components/CloudPost/SubComponents/Integration/Targets/HouzezIntegration.php on line 117
[Warning] Undefined array key "fave_additional_feature_value" in /home/u631305702/domains/njqueensrealtybelleville.com/public_html/wp-content/plugins/mls-on-the-fly/src/Components/CloudPost/SubComponents/Integration/Targets/HouzezIntegration.php on line 118
[Deprecated] explode(): Passing null to parameter #2 ($string) of type string is deprecated in /home/u631305702/domains/njqueensrealtybelleville.com/public_html/wp-content/plugins/mls-on-the-fly/src/Components/CloudPost/SubComponents/Integration/Targets/HouzezIntegration.php on line 118
[Warning] Undefined array key "fave_additional_feature_title" in /home/u631305702/domains/njqueensrealtybelleville.com/public_html/wp-content/plugins/mls-on-the-fly/src/Components/CloudPost/SubComponents/Integration/Targets/HouzezIntegration.php on line 117
[Deprecated] explode(): Passing null to parameter #2 ($string) of type string is deprecated in /home/u631305702/domains/njqueensrealtybelleville.com/public_html/wp-content/plugins/mls-on-the-fly/src/Components/CloudPost/SubComponents/Integration/Targets/HouzezIntegration.php on line 117
[Warning] Undefined array key "fave_additional_feature_value" in /home/u631305702/domains/njqueensrealtybelleville.com/public_html/wp-content/plugins/mls-on-the-fly/src/Components/CloudPost/SubComponents/Integration/Targets/HouzezIntegration.php on line 118
[Deprecated] explode(): Passing null to parameter #2 ($string) of type string is deprecated in /home/u631305702/domains/njqueensrealtybelleville.com/public_html/wp-content/plugins/mls-on-the-fly/src/Components/CloudPost/SubComponents/Integration/Targets/HouzezIntegration.php on line 118