MLS On The Fly Debug Panel
X
No single property request sent on this page.
MLS On The Fly Debug Panel
X
array:1 [
"RF Query: /Property?$select=ALL&$top=20&$filter=ListingKey eq 5418522&$expand=Media&$count=true " => array:2 [
"RF Response " => Realtyna\MlsOnTheFly\Components\CloudPost\SubComponents\RFClient\SDK\RF \ RFResponse {#14795
+items : array:1 [
0 => Realtyna\MlsOnTheFly\Components\CloudPost\SubComponents\RFClient\SDK\RF\Entities \ RFProperty {#14793
+post_id : "28145 "
+post_author : 1
+"ListingKey ": "5418522 "
+"ListingId ": "4016732 "
+"PropertyType ": "Residential "
+"StandardStatus ": "Active "
+"ModificationTimestamp ": "2026-03-28T03:02:19Z "
+"RFModificationTimestamp ": "2026-03-28T08:46:57Z "
+"ListPrice ": "480000 "
+"BathroomsTotalInteger ": 2.0
+"BathroomsHalf ": "0 "
+"BedroomsTotal ": "3 "
+"LotSizeArea ": 0.17
+"LivingArea ": 0
+"BuildingAreaTotal ": 0
+"City ": "Paterson City "
+"PostalCode ": "07504-2118 "
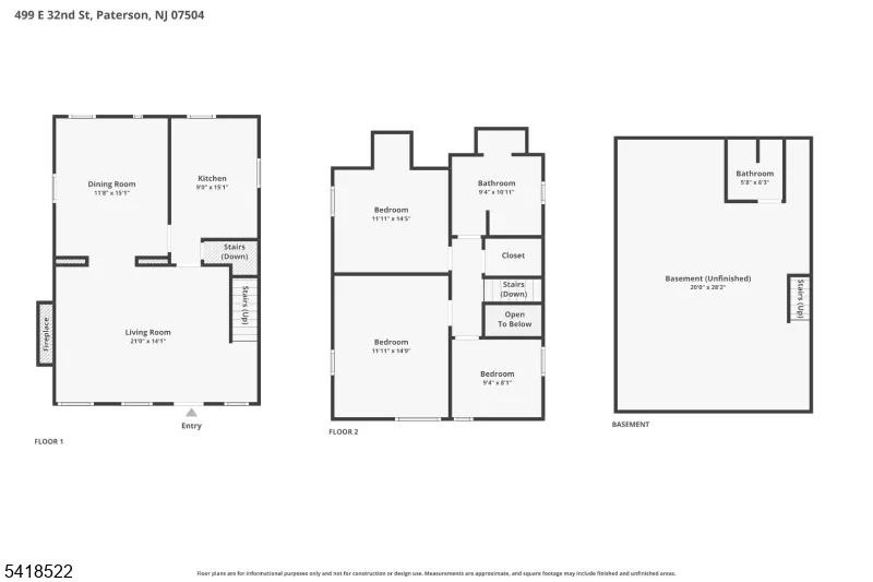
+"UnparsedAddress ": "501 E 32nd St, Paterson City, Passaic 07504-2118 "
+"Coordinates ": array:2 [
0 => -74.14498
1 => 40.90781
]
+"Latitude ": "40.90781 "
+"Longitude ": "-74.14498 "
+"YearBuilt ": "1940 "
+"InternetAddressDisplayYN ": true
+"FeedTypes ": "IDX "
+"ListOfficeName ": "EXP REALTY, LLC "
+"ListAgentMlsId ": "300361 "
+"ListOfficeMlsId ": "5028 "
+"OriginatingSystemName ": "gsmls "
+"PublicRemarks ": "This well-maintained home offers 3 bedrooms and 2 full bathrooms, providing the perfect balance of comfort and functionality. The layout is bright and practical, with inviting living spaces and generously sized rooms throughout. The basement is a major bonus ideal for a recreation room, home office, gym, or additional storage, giving you the flexibility to make the space your own. A great option for homeowners or investors alike, this property offers solid value, versatility, and long-term potential. Great space. Great price. Great opportunity schedule your showing today! "
+"Appliances ": "Dryer, Range/Oven-Gas, Washer "
+"ArchitecturalStyle ": "Colonial "
+"AttributionContact ": "908-913-8708 "
+"Basement ": "Full, Unfinished "
+"BathroomsFull ": "2 "
+"BuildingAreaUnits ": "Sqft "
+"CoListAgentMlsId ": "401452 "
+"Cooling ": "Window A/C(s) "
+"CreationDate ": "2026-03-28T08:46:53.352079+00:00 "
+"Directions ": "From I-80 to Madison Ave, to E 33rd St, to Fair Lawn Ave, to E 32nd St, property on right. GPS works fine "
+"FireplaceFeatures ": "Living Room "
+"FireplacesTotal ": "1 "
+"GarageSpaces ": "2 "
+"Heating ": "Radiators - Hot Water "
+"InternetAutomatedValuationDisplayYN ": false
+"ListOfficePhone ": "866-201-6210 "
+"ListingContractDate ": "2026-03-25 "
+"LivingAreaUnits ": "Sqft "
+"LotSizeDimensions ": "73X100 "
+"LotSizeUnits ": "Sqft "
+"MajorChangeTimestamp ": "2026-03-28T03:02:18Z "
+"MlsStatus ": "Active "
+"OpenParkingSpaces ": "8 "
+"OriginalEntryTimestamp ": "2026-03-25 16:31:40.0 "
+"Ownership ": "Fee Simple "
+"ParcelNumber ": "2508-08709-0000-00023-0000- "
+"PhotosChangeTimestamp ": "2026-03-25T16:37:59Z "
+"PhotosCount ": "46 "
+"Possession ": "See Remarks "
+"Roof ": "Asphalt Shingle "
+"RoomsTotal ": "4 "
+"Sewer ": "Public Sewer "
+"StateOrProvince ": "Passaic "
+"StreetName ": "E 32Nd St "
+"StreetNumber ": "501 "
+"TaxAnnualAmount ": "8914 "
+"TaxAssessedValue ": "443600 "
+"TaxBlock ": "8709 "
+"TaxLot ": "23 "
+"TaxYear ": "2025 "
+"Utilities ": "Electric "
+"WaterSource ": "Public Water "
+"Township ": "Paterson City "
+"class_name ": "RES "
+"LotSizeAcres ": "0.17 "
+"CountyOrParish ": "Passaic "
+"GSMLS_RoomKitchenFeatures ": "Separate Dining Area "
+"Media ": array:46 [
0 => array:11 [
"Order " => 0
"MediaKey " => "54185220 "
"MediaURL " => "https://cdn.realtyfeed.com/cdn/118/5418522/a0984b8497ddad4f250150e9ce14d308.webp "
"ClassName " => null
"MediaSize " => 385032
"MediaType " => "webp "
"Thumbnail " => "https://cdn.realtyfeed.com/cdn/118/5418522/thumbnail-a0984b8497ddad4f250150e9ce14d308.webp "
"ResourceName " => "Property "
"MediaCategory " => "Photo "
"MediaObjectID " => ""
"ResourceRecordKey " => "5418522 "
]
1 => array:11 [
"Order " => 1
"MediaKey " => "54185221 "
"MediaURL " => "https://cdn.realtyfeed.com/cdn/118/5418522/c64ec303ecf01fc0d46d03f955b07bea.webp "
"ClassName " => null
"MediaSize " => 341525
"MediaType " => "webp "
"Thumbnail " => "https://cdn.realtyfeed.com/cdn/118/5418522/thumbnail-c64ec303ecf01fc0d46d03f955b07bea.webp "
"ResourceName " => "Property "
"MediaCategory " => "Photo "
"MediaObjectID " => ""
"ResourceRecordKey " => "5418522 "
]
2 => array:11 [
"Order " => 2
"MediaKey " => "54185222 "
"MediaURL " => "https://cdn.realtyfeed.com/cdn/118/5418522/4f13071a1b11776132eaf4db4cb6780c.webp "
"ClassName " => null
"MediaSize " => 330361
"MediaType " => "webp "
"Thumbnail " => "https://cdn.realtyfeed.com/cdn/118/5418522/thumbnail-4f13071a1b11776132eaf4db4cb6780c.webp "
"ResourceName " => "Property "
"MediaCategory " => "Photo "
"MediaObjectID " => ""
"ResourceRecordKey " => "5418522 "
]
3 => array:11 [
"Order " => 3
"MediaKey " => "54185223 "
"MediaURL " => "https://cdn.realtyfeed.com/cdn/118/5418522/5383dc6379546ac9abd8706fe334ae63.webp "
"ClassName " => null
"MediaSize " => 343868
"MediaType " => "webp "
"Thumbnail " => "https://cdn.realtyfeed.com/cdn/118/5418522/thumbnail-5383dc6379546ac9abd8706fe334ae63.webp "
"ResourceName " => "Property "
"MediaCategory " => "Photo "
"MediaObjectID " => ""
"ResourceRecordKey " => "5418522 "
]
4 => array:11 [
"Order " => 4
"MediaKey " => "54185224 "
"MediaURL " => "https://cdn.realtyfeed.com/cdn/118/5418522/ce3e8770a30776971589aad9e68ebbef.webp "
"ClassName " => null
"MediaSize " => 324410
"MediaType " => "webp "
"Thumbnail " => "https://cdn.realtyfeed.com/cdn/118/5418522/thumbnail-ce3e8770a30776971589aad9e68ebbef.webp "
"ResourceName " => "Property "
"MediaCategory " => "Photo "
"MediaObjectID " => ""
"ResourceRecordKey " => "5418522 "
]
5 => array:11 [
"Order " => 5
"MediaKey " => "54185225 "
"MediaURL " => "https://cdn.realtyfeed.com/cdn/118/5418522/4cbe3a12b53c895e5c6d954230a1fb18.webp "
"ClassName " => null
"MediaSize " => 326608
"MediaType " => "webp "
"Thumbnail " => "https://cdn.realtyfeed.com/cdn/118/5418522/thumbnail-4cbe3a12b53c895e5c6d954230a1fb18.webp "
"ResourceName " => "Property "
"MediaCategory " => "Photo "
"MediaObjectID " => ""
"ResourceRecordKey " => "5418522 "
]
6 => array:11 [
"Order " => 6
"MediaKey " => "54185226 "
"MediaURL " => "https://cdn.realtyfeed.com/cdn/118/5418522/b53b0399b16294a5ff86dcbcecc10a21.webp "
"ClassName " => null
"MediaSize " => 316260
"MediaType " => "webp "
"Thumbnail " => "https://cdn.realtyfeed.com/cdn/118/5418522/thumbnail-b53b0399b16294a5ff86dcbcecc10a21.webp "
"ResourceName " => "Property "
"MediaCategory " => "Photo "
"MediaObjectID " => ""
"ResourceRecordKey " => "5418522 "
]
7 => array:11 [
"Order " => 7
"MediaKey " => "54185227 "
"MediaURL " => "https://cdn.realtyfeed.com/cdn/118/5418522/47e498ebd918a674f13c6aef8b181d5e.webp "
"ClassName " => null
"MediaSize " => 276683
"MediaType " => "webp "
"Thumbnail " => "https://cdn.realtyfeed.com/cdn/118/5418522/thumbnail-47e498ebd918a674f13c6aef8b181d5e.webp "
"ResourceName " => "Property "
"MediaCategory " => "Photo "
"MediaObjectID " => ""
"ResourceRecordKey " => "5418522 "
]
8 => array:11 [
"Order " => 8
"MediaKey " => "54185228 "
"MediaURL " => "https://cdn.realtyfeed.com/cdn/118/5418522/8efd9f535a6e1f266489445df184b5c1.webp "
"ClassName " => null
"MediaSize " => 289418
"MediaType " => "webp "
"Thumbnail " => "https://cdn.realtyfeed.com/cdn/118/5418522/thumbnail-8efd9f535a6e1f266489445df184b5c1.webp "
"ResourceName " => "Property "
"MediaCategory " => "Photo "
"MediaObjectID " => ""
"ResourceRecordKey " => "5418522 "
]
9 => array:11 [
"Order " => 9
"MediaKey " => "54185229 "
"MediaURL " => "https://cdn.realtyfeed.com/cdn/118/5418522/88208591670c5ea1fa6df079ad6a79ef.webp "
"ClassName " => null
"MediaSize " => 289385
"MediaType " => "webp "
"Thumbnail " => "https://cdn.realtyfeed.com/cdn/118/5418522/thumbnail-88208591670c5ea1fa6df079ad6a79ef.webp "
"ResourceName " => "Property "
"MediaCategory " => "Photo "
"MediaObjectID " => ""
"ResourceRecordKey " => "5418522 "
]
10 => array:11 [
"Order " => 10
"MediaKey " => "541852210 "
"MediaURL " => "https://cdn.realtyfeed.com/cdn/118/5418522/ac9e7516f266a83a19d453dd08532723.webp "
"ClassName " => null
"MediaSize " => 245965
"MediaType " => "webp "
"Thumbnail " => "https://cdn.realtyfeed.com/cdn/118/5418522/thumbnail-ac9e7516f266a83a19d453dd08532723.webp "
"ResourceName " => "Property "
"MediaCategory " => "Photo "
"MediaObjectID " => ""
"ResourceRecordKey " => "5418522 "
]
11 => array:11 [
"Order " => 11
"MediaKey " => "541852211 "
"MediaURL " => "https://cdn.realtyfeed.com/cdn/118/5418522/629f8e10a5e02f85612e981a33913796.webp "
"ClassName " => null
"MediaSize " => 343201
"MediaType " => "webp "
"Thumbnail " => "https://cdn.realtyfeed.com/cdn/118/5418522/thumbnail-629f8e10a5e02f85612e981a33913796.webp "
"ResourceName " => "Property "
"MediaCategory " => "Photo "
"MediaObjectID " => ""
"ResourceRecordKey " => "5418522 "
]
12 => array:11 [
"Order " => 12
"MediaKey " => "541852212 "
"MediaURL " => "https://cdn.realtyfeed.com/cdn/118/5418522/9d419918fdbacf2d66ddc7480ab12954.webp "
"ClassName " => null
"MediaSize " => 332765
"MediaType " => "webp "
"Thumbnail " => "https://cdn.realtyfeed.com/cdn/118/5418522/thumbnail-9d419918fdbacf2d66ddc7480ab12954.webp "
"ResourceName " => "Property "
"MediaCategory " => "Photo "
"MediaObjectID " => ""
"ResourceRecordKey " => "5418522 "
]
13 => array:11 [
"Order " => 13
"MediaKey " => "541852213 "
"MediaURL " => "https://cdn.realtyfeed.com/cdn/118/5418522/b68360f51f91fd95e4cecf0f7edd8361.webp "
"ClassName " => null
"MediaSize " => 300348
"MediaType " => "webp "
"Thumbnail " => "https://cdn.realtyfeed.com/cdn/118/5418522/thumbnail-b68360f51f91fd95e4cecf0f7edd8361.webp "
"ResourceName " => "Property "
"MediaCategory " => "Photo "
"MediaObjectID " => ""
"ResourceRecordKey " => "5418522 "
]
14 => array:11 [
"Order " => 14
"MediaKey " => "541852214 "
"MediaURL " => "https://cdn.realtyfeed.com/cdn/118/5418522/f8953de5345ad569383d2b411a6d776f.webp "
"ClassName " => null
"MediaSize " => 318109
"MediaType " => "webp "
"Thumbnail " => "https://cdn.realtyfeed.com/cdn/118/5418522/thumbnail-f8953de5345ad569383d2b411a6d776f.webp "
"ResourceName " => "Property "
"MediaCategory " => "Photo "
"MediaObjectID " => ""
"ResourceRecordKey " => "5418522 "
]
15 => array:11 [
"Order " => 15
"MediaKey " => "541852215 "
"MediaURL " => "https://cdn.realtyfeed.com/cdn/118/5418522/90dd6cb1b2c872782c4be19b337fd742.webp "
"ClassName " => null
"MediaSize " => 307952
"MediaType " => "webp "
"Thumbnail " => "https://cdn.realtyfeed.com/cdn/118/5418522/thumbnail-90dd6cb1b2c872782c4be19b337fd742.webp "
"ResourceName " => "Property "
"MediaCategory " => "Photo "
"MediaObjectID " => ""
"ResourceRecordKey " => "5418522 "
]
16 => array:11 [
"Order " => 16
"MediaKey " => "541852216 "
"MediaURL " => "https://cdn.realtyfeed.com/cdn/118/5418522/248c99900b1f4ea0bff105eec5d629bb.webp "
"ClassName " => null
"MediaSize " => 285339
"MediaType " => "webp "
"Thumbnail " => "https://cdn.realtyfeed.com/cdn/118/5418522/thumbnail-248c99900b1f4ea0bff105eec5d629bb.webp "
"ResourceName " => "Property "
"MediaCategory " => "Photo "
"MediaObjectID " => ""
"ResourceRecordKey " => "5418522 "
]
17 => array:11 [
"Order " => 17
"MediaKey " => "541852217 "
"MediaURL " => "https://cdn.realtyfeed.com/cdn/118/5418522/fa72fc432d435a1d9be7c63b01284cb7.webp "
"ClassName " => null
"MediaSize " => 230837
"MediaType " => "webp "
"Thumbnail " => "https://cdn.realtyfeed.com/cdn/118/5418522/thumbnail-fa72fc432d435a1d9be7c63b01284cb7.webp "
"ResourceName " => "Property "
"MediaCategory " => "Photo "
"MediaObjectID " => ""
"ResourceRecordKey " => "5418522 "
]
18 => array:11 [
"Order " => 18
"MediaKey " => "541852218 "
"MediaURL " => "https://cdn.realtyfeed.com/cdn/118/5418522/ac6c0fddfc6a63c3b1563827fe75105a.webp "
"ClassName " => null
"MediaSize " => 398667
"MediaType " => "webp "
"Thumbnail " => "https://cdn.realtyfeed.com/cdn/118/5418522/thumbnail-ac6c0fddfc6a63c3b1563827fe75105a.webp "
"ResourceName " => "Property "
"MediaCategory " => "Photo "
"MediaObjectID " => ""
"ResourceRecordKey " => "5418522 "
]
19 => array:11 [
"Order " => 19
"MediaKey " => "541852219 "
"MediaURL " => "https://cdn.realtyfeed.com/cdn/118/5418522/3407a3a6374dbead3678015129c9c2dd.webp "
"ClassName " => null
"MediaSize " => 408449
"MediaType " => "webp "
"Thumbnail " => "https://cdn.realtyfeed.com/cdn/118/5418522/thumbnail-3407a3a6374dbead3678015129c9c2dd.webp "
"ResourceName " => "Property "
"MediaCategory " => "Photo "
"MediaObjectID " => ""
"ResourceRecordKey " => "5418522 "
]
20 => array:11 [
"Order " => 20
"MediaKey " => "541852220 "
"MediaURL " => "https://cdn.realtyfeed.com/cdn/118/5418522/0a2201f356b91063da1ba85cef2bbc86.webp "
"ClassName " => null
"MediaSize " => 345269
"MediaType " => "webp "
"Thumbnail " => "https://cdn.realtyfeed.com/cdn/118/5418522/thumbnail-0a2201f356b91063da1ba85cef2bbc86.webp "
"ResourceName " => "Property "
"MediaCategory " => "Photo "
"MediaObjectID " => ""
"ResourceRecordKey " => "5418522 "
]
21 => array:11 [
"Order " => 21
"MediaKey " => "541852221 "
"MediaURL " => "https://cdn.realtyfeed.com/cdn/118/5418522/9d78424394b0f6f68f18e5421b4a8cd0.webp "
"ClassName " => null
"MediaSize " => 441291
"MediaType " => "webp "
"Thumbnail " => "https://cdn.realtyfeed.com/cdn/118/5418522/thumbnail-9d78424394b0f6f68f18e5421b4a8cd0.webp "
"ResourceName " => "Property "
"MediaCategory " => "Photo "
"MediaObjectID " => ""
"ResourceRecordKey " => "5418522 "
]
22 => array:11 [
"Order " => 22
"MediaKey " => "541852222 "
"MediaURL " => "https://cdn.realtyfeed.com/cdn/118/5418522/1977b1a30ca707b5ce029542cb8532ef.webp "
"ClassName " => null
"MediaSize " => 377858
"MediaType " => "webp "
"Thumbnail " => "https://cdn.realtyfeed.com/cdn/118/5418522/thumbnail-1977b1a30ca707b5ce029542cb8532ef.webp "
"ResourceName " => "Property "
"MediaCategory " => "Photo "
"MediaObjectID " => ""
"ResourceRecordKey " => "5418522 "
]
23 => array:11 [
"Order " => 23
"MediaKey " => "541852223 "
"MediaURL " => "https://cdn.realtyfeed.com/cdn/118/5418522/191397852b3bc705ab48331e3d1e7710.webp "
"ClassName " => null
"MediaSize " => 316455
"MediaType " => "webp "
"Thumbnail " => "https://cdn.realtyfeed.com/cdn/118/5418522/thumbnail-191397852b3bc705ab48331e3d1e7710.webp "
"ResourceName " => "Property "
"MediaCategory " => "Photo "
"MediaObjectID " => ""
"ResourceRecordKey " => "5418522 "
]
24 => array:11 [
"Order " => 24
"MediaKey " => "541852224 "
"MediaURL " => "https://cdn.realtyfeed.com/cdn/118/5418522/1ff7039934b241a4066f07f466c8d559.webp "
"ClassName " => null
"MediaSize " => 372475
"MediaType " => "webp "
"Thumbnail " => "https://cdn.realtyfeed.com/cdn/118/5418522/thumbnail-1ff7039934b241a4066f07f466c8d559.webp "
"ResourceName " => "Property "
"MediaCategory " => "Photo "
"MediaObjectID " => ""
"ResourceRecordKey " => "5418522 "
]
25 => array:11 [
"Order " => 25
"MediaKey " => "541852225 "
"MediaURL " => "https://cdn.realtyfeed.com/cdn/118/5418522/1c14383caad04779b930a0d087a691be.webp "
"ClassName " => null
"MediaSize " => 377175
"MediaType " => "webp "
"Thumbnail " => "https://cdn.realtyfeed.com/cdn/118/5418522/thumbnail-1c14383caad04779b930a0d087a691be.webp "
"ResourceName " => "Property "
"MediaCategory " => "Photo "
"MediaObjectID " => ""
"ResourceRecordKey " => "5418522 "
]
26 => array:11 [
"Order " => 26
"MediaKey " => "541852226 "
"MediaURL " => "https://cdn.realtyfeed.com/cdn/118/5418522/c6661c7548829695be08083fcce8883b.webp "
"ClassName " => null
"MediaSize " => 391534
"MediaType " => "webp "
"Thumbnail " => "https://cdn.realtyfeed.com/cdn/118/5418522/thumbnail-c6661c7548829695be08083fcce8883b.webp "
"ResourceName " => "Property "
"MediaCategory " => "Photo "
"MediaObjectID " => ""
"ResourceRecordKey " => "5418522 "
]
27 => array:11 [
"Order " => 27
"MediaKey " => "541852227 "
"MediaURL " => "https://cdn.realtyfeed.com/cdn/118/5418522/2cdec74772798f375d86c9f7906e7fa1.webp "
"ClassName " => null
"MediaSize " => 382157
"MediaType " => "webp "
"Thumbnail " => "https://cdn.realtyfeed.com/cdn/118/5418522/thumbnail-2cdec74772798f375d86c9f7906e7fa1.webp "
"ResourceName " => "Property "
"MediaCategory " => "Photo "
"MediaObjectID " => ""
"ResourceRecordKey " => "5418522 "
]
28 => array:11 [
"Order " => 28
"MediaKey " => "541852228 "
"MediaURL " => "https://cdn.realtyfeed.com/cdn/118/5418522/538f44d5c88371d6733208aae8340fc5.webp "
"ClassName " => null
"MediaSize " => 379114
"MediaType " => "webp "
"Thumbnail " => "https://cdn.realtyfeed.com/cdn/118/5418522/thumbnail-538f44d5c88371d6733208aae8340fc5.webp "
"ResourceName " => "Property "
"MediaCategory " => "Photo "
"MediaObjectID " => ""
"ResourceRecordKey " => "5418522 "
]
29 => array:11 [
"Order " => 29
"MediaKey " => "541852229 "
"MediaURL " => "https://cdn.realtyfeed.com/cdn/118/5418522/3e2ce80d12c7360d6caf1a0236dd5fcd.webp "
"ClassName " => null
"MediaSize " => 360213
"MediaType " => "webp "
"Thumbnail " => "https://cdn.realtyfeed.com/cdn/118/5418522/thumbnail-3e2ce80d12c7360d6caf1a0236dd5fcd.webp "
"ResourceName " => "Property "
"MediaCategory " => "Photo "
"MediaObjectID " => ""
"ResourceRecordKey " => "5418522 "
]
30 => array:11 [
"Order " => 30
"MediaKey " => "541852230 "
"MediaURL " => "https://cdn.realtyfeed.com/cdn/118/5418522/8aa1a40d578b2c6a6db554598dc5b93c.webp "
"ClassName " => null
"MediaSize " => 411929
"MediaType " => "webp "
"Thumbnail " => "https://cdn.realtyfeed.com/cdn/118/5418522/thumbnail-8aa1a40d578b2c6a6db554598dc5b93c.webp "
"ResourceName " => "Property "
"MediaCategory " => "Photo "
"MediaObjectID " => ""
"ResourceRecordKey " => "5418522 "
]
31 => array:11 [
"Order " => 31
"MediaKey " => "541852231 "
"MediaURL " => "https://cdn.realtyfeed.com/cdn/118/5418522/db0740b1ca9d0eb3b3cf34b1d1b836a2.webp "
"ClassName " => null
"MediaSize " => 394007
"MediaType " => "webp "
"Thumbnail " => "https://cdn.realtyfeed.com/cdn/118/5418522/thumbnail-db0740b1ca9d0eb3b3cf34b1d1b836a2.webp "
"ResourceName " => "Property "
"MediaCategory " => "Photo "
"MediaObjectID " => ""
"ResourceRecordKey " => "5418522 "
]
32 => array:11 [
"Order " => 32
"MediaKey " => "541852232 "
"MediaURL " => "https://cdn.realtyfeed.com/cdn/118/5418522/cafacb77cb898bd539d85c7ff5e69a4c.webp "
"ClassName " => null
"MediaSize " => 405817
"MediaType " => "webp "
"Thumbnail " => "https://cdn.realtyfeed.com/cdn/118/5418522/thumbnail-cafacb77cb898bd539d85c7ff5e69a4c.webp "
"ResourceName " => "Property "
"MediaCategory " => "Photo "
"MediaObjectID " => ""
"ResourceRecordKey " => "5418522 "
]
33 => array:11 [
"Order " => 33
"MediaKey " => "541852233 "
"MediaURL " => "https://cdn.realtyfeed.com/cdn/118/5418522/dbbe5b0651d36bc49dd02d693f924526.webp "
"ClassName " => null
"MediaSize " => 376564
"MediaType " => "webp "
"Thumbnail " => "https://cdn.realtyfeed.com/cdn/118/5418522/thumbnail-dbbe5b0651d36bc49dd02d693f924526.webp "
"ResourceName " => "Property "
"MediaCategory " => "Photo "
"MediaObjectID " => ""
"ResourceRecordKey " => "5418522 "
]
34 => array:11 [
"Order " => 34
"MediaKey " => "541852234 "
"MediaURL " => "https://cdn.realtyfeed.com/cdn/118/5418522/60be875ed1c48cac42cd3fb37ba470cd.webp "
"ClassName " => null
"MediaSize " => 316008
"MediaType " => "webp "
"Thumbnail " => "https://cdn.realtyfeed.com/cdn/118/5418522/thumbnail-60be875ed1c48cac42cd3fb37ba470cd.webp "
"ResourceName " => "Property "
"MediaCategory " => "Photo "
"MediaObjectID " => ""
"ResourceRecordKey " => "5418522 "
]
35 => array:11 [
"Order " => 35
"MediaKey " => "541852235 "
"MediaURL " => "https://cdn.realtyfeed.com/cdn/118/5418522/abf84ed8c2c2813419c664b03aadeaec.webp "
"ClassName " => null
"MediaSize " => 397389
"MediaType " => "webp "
"Thumbnail " => "https://cdn.realtyfeed.com/cdn/118/5418522/thumbnail-abf84ed8c2c2813419c664b03aadeaec.webp "
"ResourceName " => "Property "
"MediaCategory " => "Photo "
"MediaObjectID " => ""
"ResourceRecordKey " => "5418522 "
]
36 => array:11 [
"Order " => 36
"MediaKey " => "541852236 "
"MediaURL " => "https://cdn.realtyfeed.com/cdn/118/5418522/3408c05b724320210fa630f56cb397c5.webp "
"ClassName " => null
"MediaSize " => 405112
"MediaType " => "webp "
"Thumbnail " => "https://cdn.realtyfeed.com/cdn/118/5418522/thumbnail-3408c05b724320210fa630f56cb397c5.webp "
"ResourceName " => "Property "
"MediaCategory " => "Photo "
"MediaObjectID " => ""
"ResourceRecordKey " => "5418522 "
]
37 => array:11 [
"Order " => 37
"MediaKey " => "541852237 "
"MediaURL " => "https://cdn.realtyfeed.com/cdn/118/5418522/ee0b184329b934f6d81ec764cf0acc3c.webp "
"ClassName " => null
"MediaSize " => 413176
"MediaType " => "webp "
"Thumbnail " => "https://cdn.realtyfeed.com/cdn/118/5418522/thumbnail-ee0b184329b934f6d81ec764cf0acc3c.webp "
"ResourceName " => "Property "
"MediaCategory " => "Photo "
"MediaObjectID " => ""
"ResourceRecordKey " => "5418522 "
]
38 => array:11 [
"Order " => 38
"MediaKey " => "541852238 "
"MediaURL " => "https://cdn.realtyfeed.com/cdn/118/5418522/8138474b1a6a97702fc6f172e6c99c86.webp "
"ClassName " => null
"MediaSize " => 435514
"MediaType " => "webp "
"Thumbnail " => "https://cdn.realtyfeed.com/cdn/118/5418522/thumbnail-8138474b1a6a97702fc6f172e6c99c86.webp "
"ResourceName " => "Property "
"MediaCategory " => "Photo "
"MediaObjectID " => ""
"ResourceRecordKey " => "5418522 "
]
39 => array:11 [
"Order " => 39
"MediaKey " => "541852239 "
"MediaURL " => "https://cdn.realtyfeed.com/cdn/118/5418522/bbead0d0fc79b6092a1624c24a5af3c2.webp "
"ClassName " => null
"MediaSize " => 448392
"MediaType " => "webp "
"Thumbnail " => "https://cdn.realtyfeed.com/cdn/118/5418522/thumbnail-bbead0d0fc79b6092a1624c24a5af3c2.webp "
"ResourceName " => "Property "
"MediaCategory " => "Photo "
"MediaObjectID " => ""
"ResourceRecordKey " => "5418522 "
]
40 => array:11 [
"Order " => 40
"MediaKey " => "541852240 "
"MediaURL " => "https://cdn.realtyfeed.com/cdn/118/5418522/32bc9ffecf98f91fa967b779ae8e8a15.webp "
"ClassName " => null
"MediaSize " => 60335
"MediaType " => "webp "
"Thumbnail " => "https://cdn.realtyfeed.com/cdn/118/5418522/thumbnail-32bc9ffecf98f91fa967b779ae8e8a15.webp "
"ResourceName " => "Property "
"MediaCategory " => "Photo "
"MediaObjectID " => ""
"ResourceRecordKey " => "5418522 "
]
41 => array:11 [
"Order " => 41
"MediaKey " => "541852241 "
"MediaURL " => "https://cdn.realtyfeed.com/cdn/118/5418522/93fa2575cbe1ad51ac6273820fad2d50.webp "
"ClassName " => null
"MediaSize " => 341740
"MediaType " => "webp "
"Thumbnail " => "https://cdn.realtyfeed.com/cdn/118/5418522/thumbnail-93fa2575cbe1ad51ac6273820fad2d50.webp "
"ResourceName " => "Property "
"MediaCategory " => "Photo "
"MediaObjectID " => ""
"ResourceRecordKey " => "5418522 "
]
42 => array:11 [
"Order " => 42
"MediaKey " => "541852242 "
"MediaURL " => "https://cdn.realtyfeed.com/cdn/118/5418522/6e2faad873e06ee1a4ac747ca69b4cab.webp "
"ClassName " => null
"MediaSize " => 310523
"MediaType " => "webp "
"Thumbnail " => "https://cdn.realtyfeed.com/cdn/118/5418522/thumbnail-6e2faad873e06ee1a4ac747ca69b4cab.webp "
"ResourceName " => "Property "
"MediaCategory " => "Photo "
"MediaObjectID " => ""
"ResourceRecordKey " => "5418522 "
]
43 => array:11 [
"Order " => 43
"MediaKey " => "541852243 "
"MediaURL " => "https://cdn.realtyfeed.com/cdn/118/5418522/334ffc25d468e067a533c59a39a17b98.webp "
"ClassName " => null
"MediaSize " => 312980
"MediaType " => "webp "
"Thumbnail " => "https://cdn.realtyfeed.com/cdn/118/5418522/thumbnail-334ffc25d468e067a533c59a39a17b98.webp "
"ResourceName " => "Property "
"MediaCategory " => "Photo "
"MediaObjectID " => ""
"ResourceRecordKey " => "5418522 "
]
44 => array:11 [
"Order " => 44
"MediaKey " => "541852244 "
"MediaURL " => "https://cdn.realtyfeed.com/cdn/118/5418522/7c411040a64628a9f9d437f3b962b30b.webp "
"ClassName " => null
"MediaSize " => 355389
"MediaType " => "webp "
"Thumbnail " => "https://cdn.realtyfeed.com/cdn/118/5418522/thumbnail-7c411040a64628a9f9d437f3b962b30b.webp "
"ResourceName " => "Property "
"MediaCategory " => "Photo "
"MediaObjectID " => ""
"ResourceRecordKey " => "5418522 "
]
45 => array:11 [
"Order " => 45
"MediaKey " => "541852245 "
"MediaURL " => "https://cdn.realtyfeed.com/cdn/118/5418522/8819ee0ea630312f84a53bc57844dac6.webp "
"ClassName " => null
"MediaSize " => 318019
"MediaType " => "webp "
"Thumbnail " => "https://cdn.realtyfeed.com/cdn/118/5418522/thumbnail-8819ee0ea630312f84a53bc57844dac6.webp "
"ResourceName " => "Property "
"MediaCategory " => "Photo "
"MediaObjectID " => ""
"ResourceRecordKey " => "5418522 "
]
]
+"@odata.id ": "https://api.realtyfeed.com/realtyfeed/odata/Property('5418522') "
+"ID ": "28145 "
}
]
+success : true
+page_size : 1
+page_count : 1
+count : 1
+after_key : ""
}
"RF Response Time " => "0.06 seconds "
]
]
MLS On The Fly Debug Panel
X
[Warning] Undefined array key "fave_additional_feature_title" in /home/u631305702/domains/njqueensrealtybelleville.com/public_html/wp-content/plugins/mls-on-the-fly/src/Components/CloudPost/SubComponents/Integration/Targets/HouzezIntegration.php on line 117
[Deprecated] explode(): Passing null to parameter #2 ($string) of type string is deprecated in /home/u631305702/domains/njqueensrealtybelleville.com/public_html/wp-content/plugins/mls-on-the-fly/src/Components/CloudPost/SubComponents/Integration/Targets/HouzezIntegration.php on line 117
[Warning] Undefined array key "fave_additional_feature_value" in /home/u631305702/domains/njqueensrealtybelleville.com/public_html/wp-content/plugins/mls-on-the-fly/src/Components/CloudPost/SubComponents/Integration/Targets/HouzezIntegration.php on line 118
[Deprecated] explode(): Passing null to parameter #2 ($string) of type string is deprecated in /home/u631305702/domains/njqueensrealtybelleville.com/public_html/wp-content/plugins/mls-on-the-fly/src/Components/CloudPost/SubComponents/Integration/Targets/HouzezIntegration.php on line 118
[Warning] Undefined array key "fave_additional_feature_title" in /home/u631305702/domains/njqueensrealtybelleville.com/public_html/wp-content/plugins/mls-on-the-fly/src/Components/CloudPost/SubComponents/Integration/Targets/HouzezIntegration.php on line 117
[Deprecated] explode(): Passing null to parameter #2 ($string) of type string is deprecated in /home/u631305702/domains/njqueensrealtybelleville.com/public_html/wp-content/plugins/mls-on-the-fly/src/Components/CloudPost/SubComponents/Integration/Targets/HouzezIntegration.php on line 117
[Warning] Undefined array key "fave_additional_feature_value" in /home/u631305702/domains/njqueensrealtybelleville.com/public_html/wp-content/plugins/mls-on-the-fly/src/Components/CloudPost/SubComponents/Integration/Targets/HouzezIntegration.php on line 118
[Deprecated] explode(): Passing null to parameter #2 ($string) of type string is deprecated in /home/u631305702/domains/njqueensrealtybelleville.com/public_html/wp-content/plugins/mls-on-the-fly/src/Components/CloudPost/SubComponents/Integration/Targets/HouzezIntegration.php on line 118